The Ruby Contemporary 4 Bedroom house plan is a nice and spacious design, providing you with enough space for the comfort of your family. This is a home you can grow and expand it without out growing it. All the rooms are nicely spacious with a good flow from space to space.
Contemporary house plans are still growing in popularity. They may cost a tad bit more but people are loving the additional roof top space that they get. The freedom to customize that rooftop to your needs is another added bonus.
This home design has both an entrance porch and an entrance lobby. This totally makes your living spaces totally private. You can engage an outsider at the lobby away from your living spaces.
Check out our FAQ’s for answers to all the questions you have on House Plans in Kenya.
The Ruby Contemporary 4 Bedroom House Plan– Detailed Description
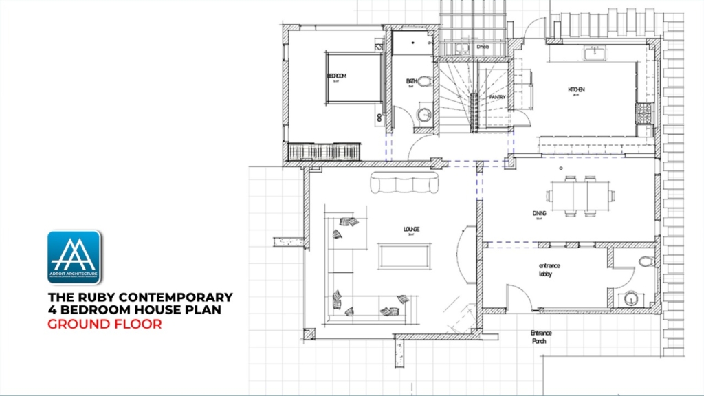
Ground Floor
- Entrance Porch
- Entrance Lobby
- Visitor’s Cloak Room
- Spacious Lounge
- Dining Room
- Kitchen
- Pantry
- Outdoor Semi Covered Dhobi Area
- En Suite Bedroom
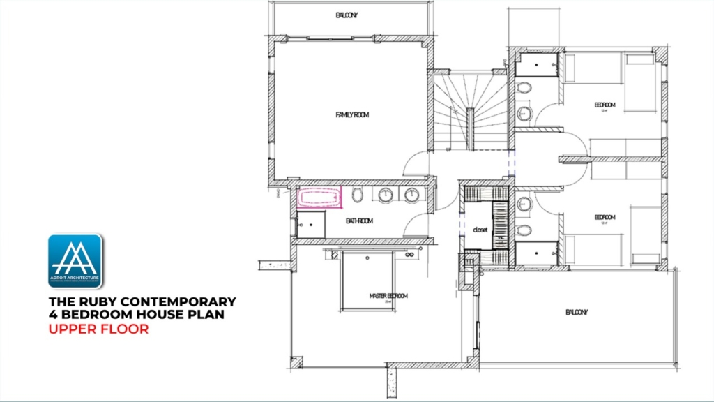
Upper Floor
- Master Bedroom with a Front Facing Balcony
- Master Bathroom with Twin Sinks, Shower Cubicle and Bathtub and a Small Walk-In Closet
- 2 other Bedrooms All En Suite
- Family Room with a Side Facing Balcony
- Front Terrace Accessible from the Master Bedroom and TV Area
The Ruby Contemporary 4 Bedroom House Plan– Sizes and Spaces
This house plan is designed to fit on a 1/8th Acre.
This house plan design has a plinth dimension of 14.5M by 13.5M.
The ground level is a total of 134M2 and the upper level is a total of 120M2.
Total are is 254M2 and 20M2 of balcony Space.
The construction cost for this house plan in Kenya is approximately 9M. We us the guidelines provided in the Quantity Surveyors Building construction cost hand book, 2019/2020 edition.
In Total: The RubyContemporary 4 Bedroom House Plan features 4 Bedrooms, 4 Bathrooms, 1 Cloak Room (Half Bath)





Hi can I get the Plan
Hi Charles,
Check your email on all the details on how to get this house plan.
Thanks
can i get the plan price
Hi Mburu,
Yes, you can. I have shared all the details on how to get this house plan on email. Revert back for further discussions.
Thanks
Can I get this plan?
Check your mail and get in touch.
Thanks Bonface.
Evening,
how may I get this plan?
Hi how much do you charge for house plans like this ruby one
Hi Anne,
Check your email for all the details.
Thanks
Hi how much is this plan?
Hi Tillen,
Check your email for all the details on this plan. Revert back for further discussions.
Thanks
How much for the house plan?
Hi Duncan,
Check your email for all the details on this house plan.
Thanks
Am interested in this plan
Resident bypass
Hi Samson,
Check your email for all the details.
Thanks for getting in touch.
How can I get this plan
Hi,
I have sent you an email with all the details. Revert back for further discussion.
Thanks
Hello. How can I get this plan?
Hi Simon,
Check your email for all the details on how to get this house plan.
Thanks
How can one get this plan and how can one request design changes?
Thanks
Hi Ephraim,
Thank you for reaching out. I have also received your email and the changes you desire in the house plan. All that can be taken care of. Check your email for all the details on the different costs for this house plan.
I await your response, thanks.
Hi David. Interested in this .
Please share more details
Hi Joyce,
I believe you made contact via WhatsApp as well. Lets keep talking there.
Thanks for reaching out!
Can I get this plan?
Check your mail and get in touch.
Thanks Bonface.
How much does it cost to construct this.
Hey can I get this plan
Hi Peter,
Yes you can. Check your email and get in touch.
Thanks
how can i get details to this plan and cost?
Hi David,
Check your email and get in touch.
Thanks
interested with this plan. Please advise
Hi Philip,
Check your email for all the details.
Thanks
Hello David, I really like the design for this house. The construction costs listed are a bit older (2019/2020). Can you send me an update on how much it would cost to build in 2024/2025?
Hi Judy,
I hope you got my email with the 2024/2025 construction cost.
I wait to hear from you.
Thanks
Long does it take to build a Ruby contemporary house?
What is required from my side?
Hi Lucy,
I shared an email with all the details. Let’s discuss when you are ready.
Thanks
Hello, how much is this plan and in case of some few changes, how do we go about it? Thank you
Hi Muchiri,
The plan can definitely be customized for you. I have sent you an email. Get in touch.
Thanks