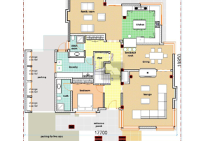
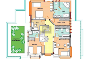
House Plans in Kenya – The Budget 3 Bedroom Bungalow House Plan
The Budget 3 Bedroom Bungalow House Plan is a simple but beautiful and functional house plan geared to first time home owners wanting to build a home on a tight budget. This house offers a total of 100M2. Not only is the house cost-effective in size, it is also structured to fit in a very [...]





